Page suivante
Page précédente
La Grande-Motte (34280)

Appartement 3 pièce(s) 2 chambre(s) 64 m²

1
Ascenseur
1
540 000 €
Réf 5486IL
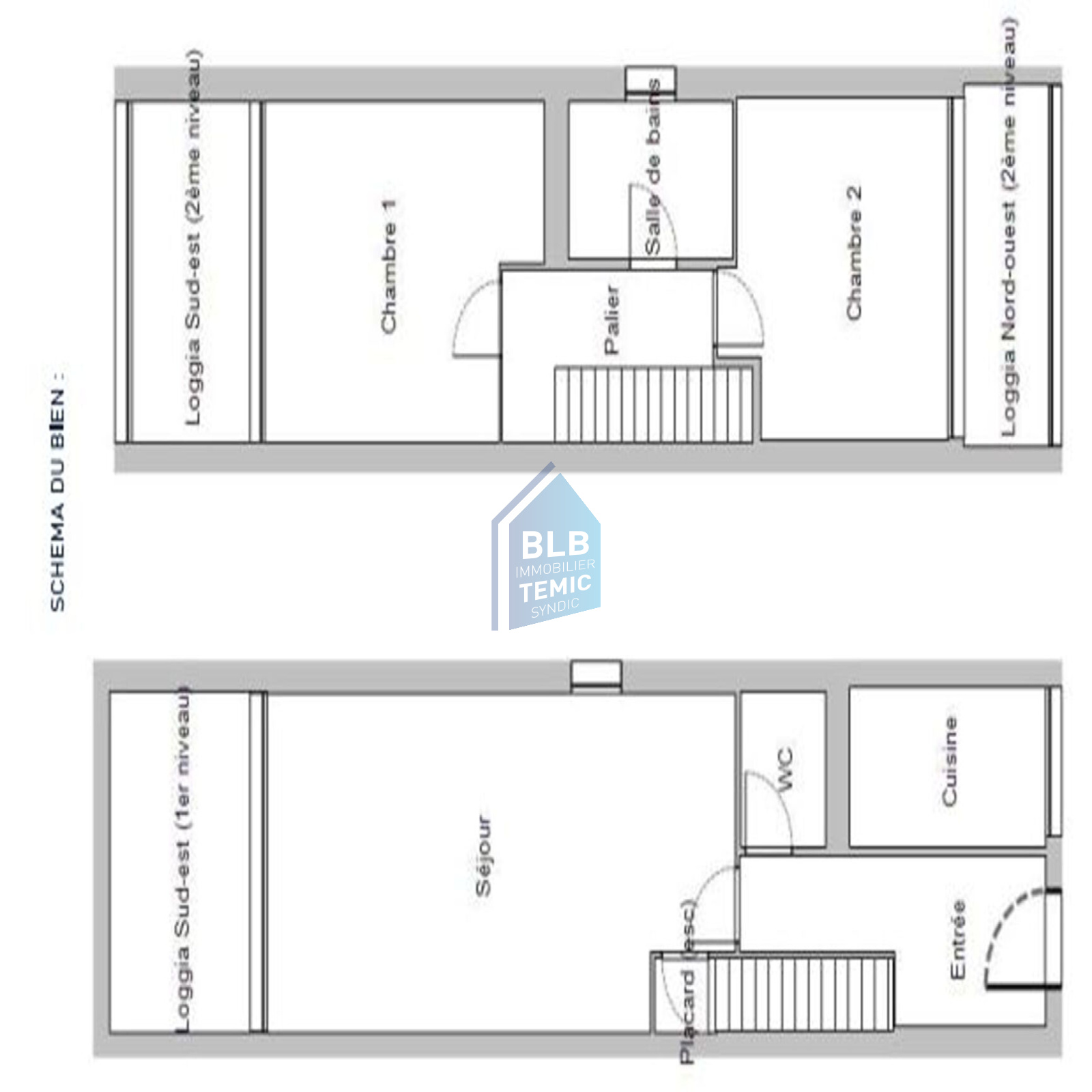
Magnifique appartement traversant en duplex situé en hyper centre dans une résidence sécurisée, première ligne et vue mer, exposition sud. Entièrement rénové, place de parking et ascenseur. 1 niveau : entrée avec grand placard, cuisine équipée, grand séjour avec terrasse de 7m² vue mer, toilette buanderie. 2 niveau : 2 belles chambres avec placard intégré, spacieuses et lumineuses avec chacune une loggia fermée dont 1 vue mer et l'autre donnant sur cour et une salle d'eau avec fenêtre. A visiter sans tarder. IL « Votre agence BLB immobilier vous accueille téléphoniquement de 8h à 19h du Lundi au Samedi sans interruption »
Les informations sur les risques auxquels ce bien est exposé sont disponibles sur le site Géorisques

Bilan énergétique

Diagnostics énergetiques
Consommation énergétique
A B C D E F G
Emission de gaz à effet de serre
A B C D E F G
DPE en cours
A propos de ce bien Caractéristiques de ce bien
  • Surface 64 m²
  • carrez 63,86 m²
  • séjour 21,45 m²
  • 2 chambre(s)
  • 1 salle(s) d'eau
  • construit en 1974
  • TRAD_DETAIL_INFOS_GLOBAL_DEFAULT_CUISINE_FORMATED_AMENAGEE_EQUIPEE
  • Chauffage collectif : autre (climatisation)
  • 1 parking(s)
  • exposition Sud
  • 2 niveau(x)
  • 1er étage
  • 8 étage(s)
  • ascenseur

Info copro

Copropriété
  • Copropriété Oui
  • Nombre de lots 129
  • Quote part annuelle des charges 1 200 €
  • Statut du syndic Pas de procédure en cours

Financier

Informations financières
Prix de vente 540 000 € Les honoraires d'agence seront intégralement à la charge du vendeur
Taxe foncière annuelle 1 400 €

Autour du bien

Découvrez le quartier

Simulation

Calcul des mensualités
* Champs obligatoires