Page suivante
Page précédente
La Grande-Motte (34280)

Appartement 3 pièce(s) 2 chambre(s) 65 m²

Ascenseur
1
450 000 €
Réf 5217ML
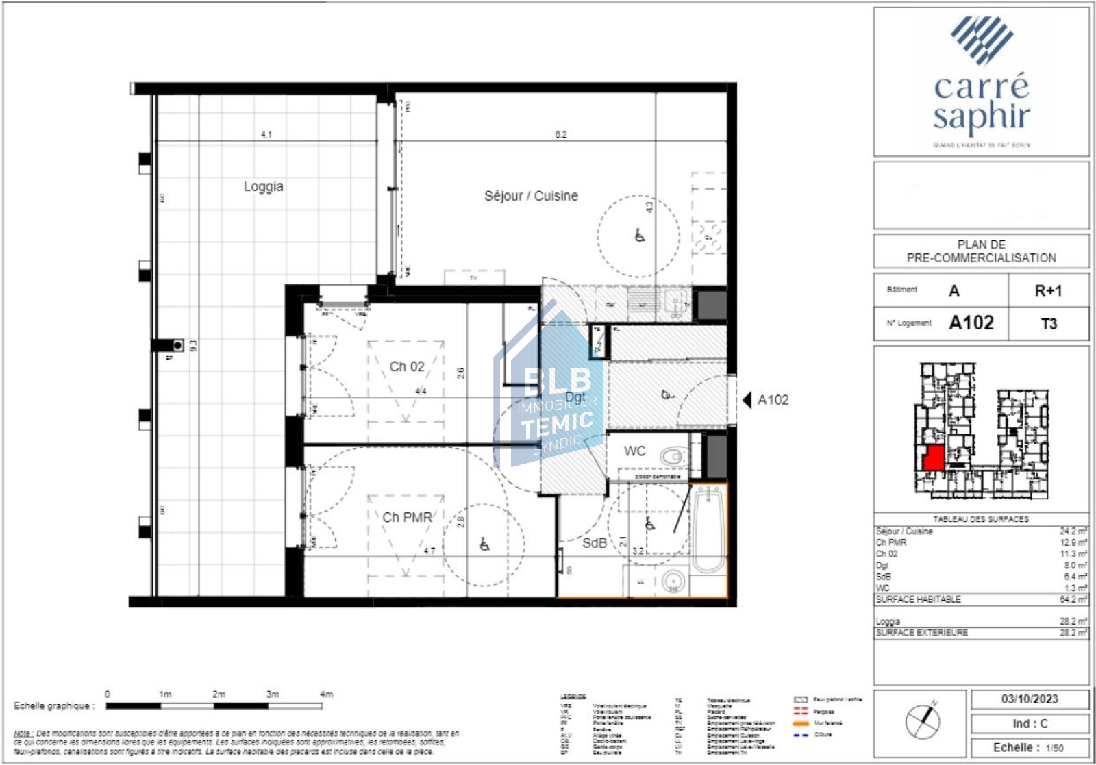
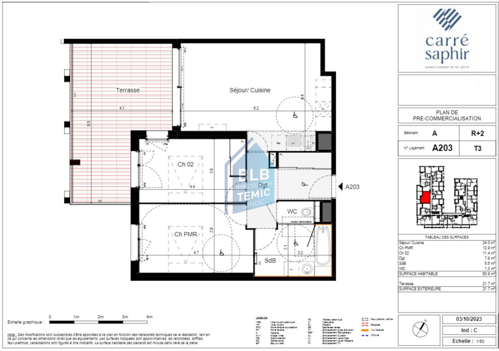
Carré saphir, c'est la rencontre entre un cadre de vie rare et un habitat d'exception. Une adresse privilégiée à La Grande Motte, à quelques pas seulement de la mer et proche de toutes les commodités. La résidence s'entoure d'un espace paysager généreux multipliant les essences locales peu consommatrices en eau. Construction conforme aux exigences de la Réglementation Environnementale RE 2020. Une résidence en centre ville, mais au calme et à moins de 5min à pied de la mer. Appartements du T2 au T4 / Accès PMR / Ascenseur / Parking / Frais notarié offert Vous trouverez les plans de quelques appartements en photos jointes => 4 appartements T3 au Rez-de-jardin Avec parking/ Terrasse + jardin de plus de 90m2 => 3 appartements T3 au 1er étage Avec parking/ Terrasse de plus de 20m2 => 2 appartements T3 au 2ème et dernier étage Avec parking/ Terrasse de plus de 16m2 Investissement/Placement financier adéquat sur le littoral Héraultais. Appelez moi pour toutes questions. Livraisons Prévues 1er trimestre 2026 Photos non contractuelles ML « Votre agence BLB immobilier vous accueille téléphoniquement de 8h à 19h du Lundi au Samedi sans interruption »

Bilan énergétique

Diagnostics énergetiques
Consommation énergétique
A B C D E F G
Emission de gaz à effet de serre
A B C D E F G
DPE ANCIENNE VERSION
A propos de ce bien Caractéristiques de ce bien
  • Surface 65 m²
  • carrez 65 m²
  • 2 chambre(s)
  • construit en 2026
  • TRAD_DETAIL_INFOS_GLOBAL_DEFAULT_CUISINE_FORMATED_AMENAGEE_EQUIPEE
  • Chauffage collectif : air pulsé (géothermie)
  • 1 parking(s)
  • 2 niveau(x)
  • 2 étage(s)
  • ascenseur
  • visiophone
  • interphone
  • accès handicapé

Info copro

Copropriété
  • Copropriété Oui
  • Nombre de lots 100
  • Statut du syndic Pas de procédure en cours

Financier

Informations financières
Prix de vente 450 000 € Les honoraires d'agence seront intégralement à la charge du vendeur

Autour du bien

Découvrez le quartier

Simulation

Calcul des mensualités
* Champs obligatoires