Page suivante
Page précédente
Palavas-les-Flots (34250)

Appartement 2 pièce(s) 1 chambre(s) 32.68 m²

1
160 000 €
Réf DCVAP70040715

PALAVAS LES FLOTS : Deuxième ligne mer, plage à 2 pas! Superbe potentielpour ce charmant T2 situé au premier étage d'une petite résidence idéalement placée proche d'un accés plage. D'une surface de 32.68m², il bénéficize d'une trés belle vue mer. Il se compose d'un séjour ouvrant sur une terrasse idéale pour déjeuner au soleilet face à la Méditerrannée! Salle d'eau avec WC séparés, et chambre au calme, au Nord. Des travaux de rénovation sont à prévoir pour en faire un cocon dansq un cadre privilégié. Idéal pour un investissement mais aussi pour une résidence principale, pour les amoureux de la mer. 

Bilan énergétique

Diagnostics énergetiques
Consommation énergétique
A B C D E F G
Emission de gaz à effet de serre
A B C D E F G
DPE en cours
A propos de ce bien Caractéristiques de ce bien
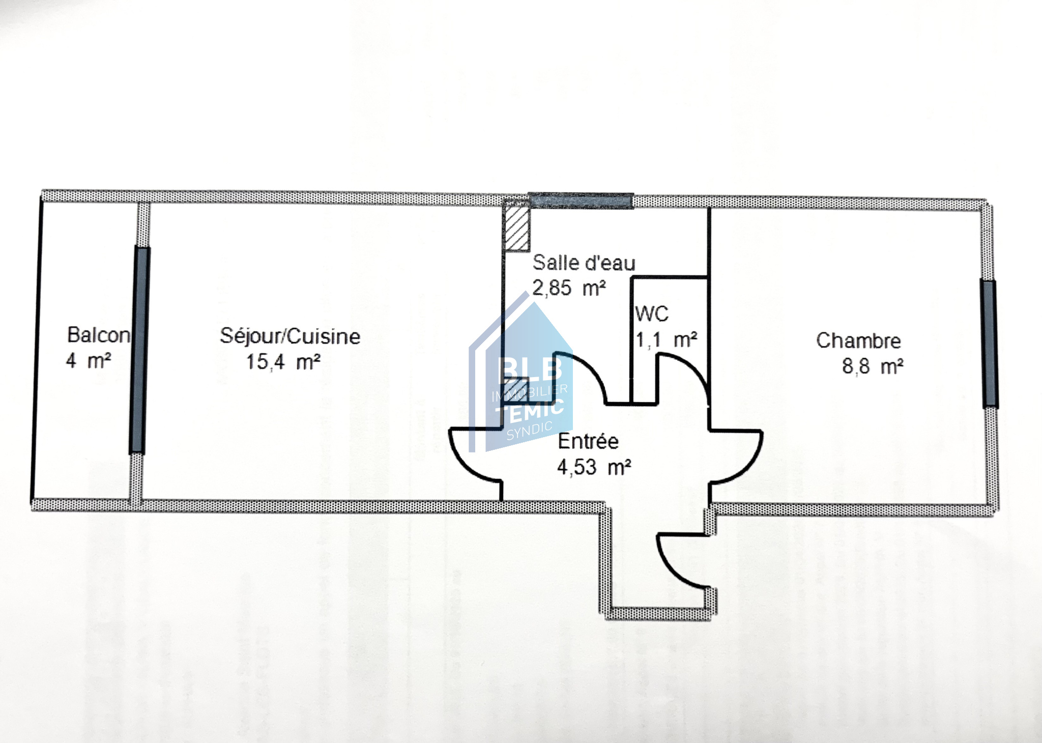
  • Surface 32,68 m²
  • carrez 32,68 m²
  • séjour 15,40 m²
  • 1 chambre(s)
  • 1 salle(s) d'eau
  • construit en 1970
  • exposition Sud
  • 1 côté(s) mitoyen(s)
  • 1er étage
  • 2 étage(s)
  • vue Mer
  • terrasse

Info copro

Copropriété
  • Copropriété Oui
  • Lot n° 101
  • Nombre de lots 32
  • Quote part annuelle des charges 600 €
  • Plan de sauvegarde Non

Financier

Informations financières
Prix de vente honoraires TTC inclus 160 000 €
Charges 50 €
Taxe foncière annuelle 790 €

Autour du bien

Découvrez le quartier

Simulation

Calcul des mensualités
* Champs obligatoires